Оренда на пр-ті. Павла Тичини, 10 приміщення на 40,6 м, від власника
ID: 1297
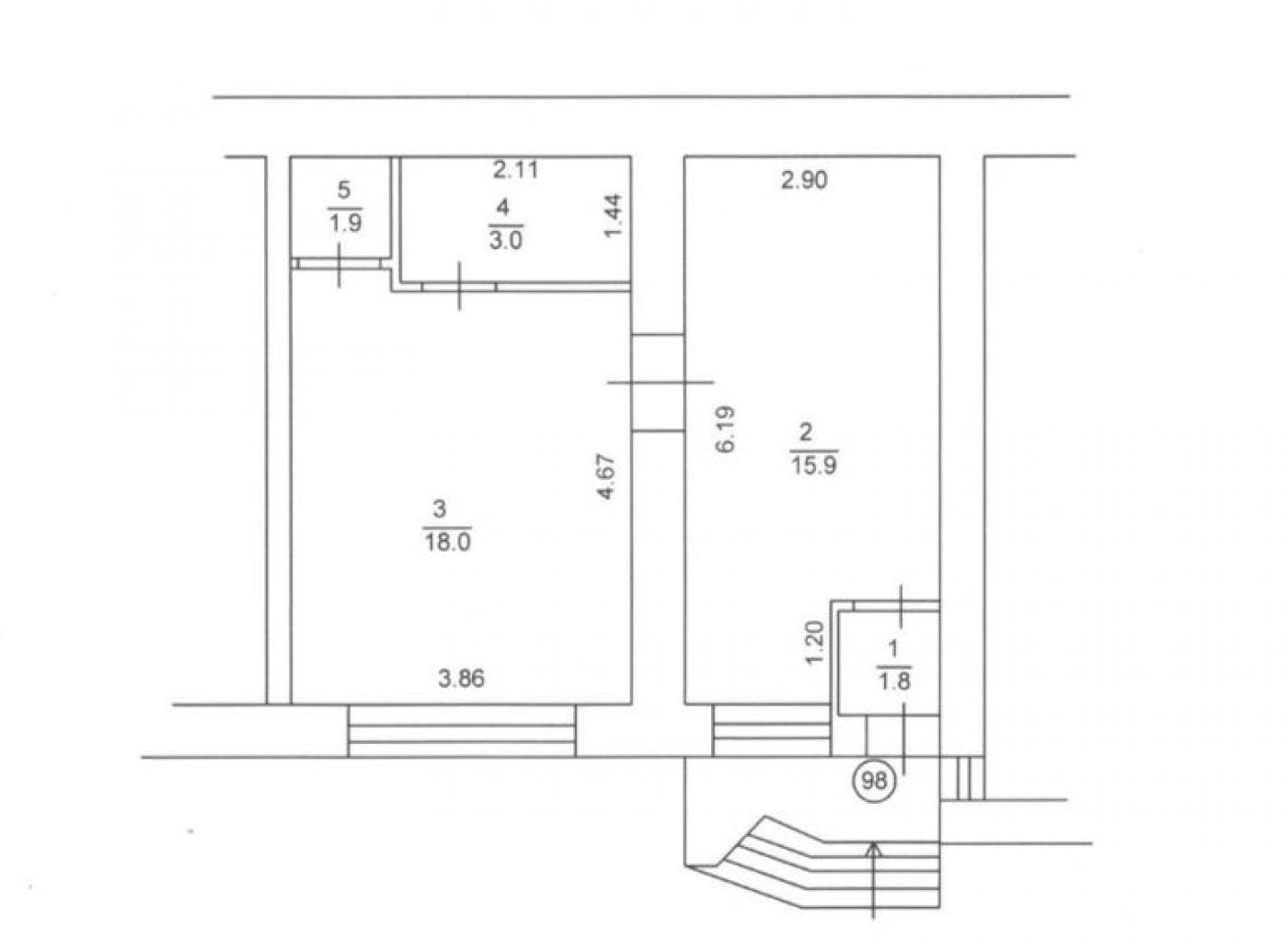
Характеристика об'єкта ID:1297 Київ, Дніпровський район, Тичини Павла
- Вулиця: Тичини Павла
- Поверх: 1-й
- Кіл. поверхів: 10
- Загальна площа: 40 м2
- Тип торгової точки: Нежитловий фонд
- Підведення води: Є
- Працює з рієлтором: Так
Основні характеристики:
адреса — проспект Павла Тичини, 10
площа — 40,6 м²
Пропонується в оренду нежитлове комерційне приміщення площею 40,6 м², розташоване за адресою проспект Павла Тичини, 10. Об’єкт знаходиться на першому поверсі житлового будинку, у сформованому спальному районі з активним повсякденним життям та стабільним пішохідним трафіком.
Локація має добре розвинену інфраструктуру та зрозуміле комерційне оточення. Поруч уже працюють аптека, салон краси та магазин автозапчастин, що постійно залучають відвідувачів і формують додатковий потік потенційних клієнтів. Неподалік розташована зупинка громадського транспорту, завдяки чому приміщення зручне не лише для мешканців прилеглих будинків, а й для людей з інших частин району.
Розташування у спальному районі забезпечує рівномірний та прогнозований трафік протягом усього дня. Мешканці щодня проходять повз приміщення дорогою додому, на роботу або у повсякденних справах, що створює сприятливі умови для формування постійної клієнтської бази. Саме такі локації добре підходять для бізнесів, орієнтованих на щоденний попит та довгострокову роботу.
Площа 40,6 м² є оптимальною для організації повноцінного торгового або сервісного простору. Приміщення дозволяє зручно зонувати площу під торговий зал, робочу зону персоналу, зону обслуговування клієнтів та, за потреби, допоміжні приміщення. Такий метраж підходить як для відкриття нового бізнесу, так і для розширення вже існуючої діяльності.
Приміщення має універсальне призначення та може бути адаптоване під різні формати комерційної діяльності. Воно чудово підійде для продуктового або алкогольного магазину, кафе, ломбарду, салону краси, зоомагазину, спеціалізованої торгової точки або іншого бізнесу, орієнтованого на мешканців району. Формат нежитлового фонду на першому поверсі є зручним для стабільної роботи без обмежень, характерних для тимчасових споруд.
Проспект Павла Тичини — це жива міська локація з щільною житловою забудовою та активним рухом людей. Комерційні приміщення у таких місцях користуються стабільним попитом, оскільки забезпечують бізнесу постійний контакт із потенційними клієнтами та мінімізують ризики простою.
Нежитлове приміщення на проспекті Павла Тичини, 10 стане вдалим рішенням для підприємців, які шукають комерційну площу у спальному районі Києва з хорошою прохідністю, зрозумілим оточенням та реальним потенціалом розвитку.
Оренда здійснюється без комісії, напряму від власника, на прозорих і зрозумілих умовах.
Телефонуйте, щоб орендувати об’єкт або уточнити всі деталі. Контактні номери наведені нижче.
адреса — проспект Павла Тичини, 10
площа — 40,6 м²
Пропонується в оренду нежитлове комерційне приміщення площею 40,6 м², розташоване за адресою проспект Павла Тичини, 10. Об’єкт знаходиться на першому поверсі житлового будинку, у сформованому спальному районі з активним повсякденним життям та стабільним пішохідним трафіком.
Локація має добре розвинену інфраструктуру та зрозуміле комерційне оточення. Поруч уже працюють аптека, салон краси та магазин автозапчастин, що постійно залучають відвідувачів і формують додатковий потік потенційних клієнтів. Неподалік розташована зупинка громадського транспорту, завдяки чому приміщення зручне не лише для мешканців прилеглих будинків, а й для людей з інших частин району.
Розташування у спальному районі забезпечує рівномірний та прогнозований трафік протягом усього дня. Мешканці щодня проходять повз приміщення дорогою додому, на роботу або у повсякденних справах, що створює сприятливі умови для формування постійної клієнтської бази. Саме такі локації добре підходять для бізнесів, орієнтованих на щоденний попит та довгострокову роботу.
Площа 40,6 м² є оптимальною для організації повноцінного торгового або сервісного простору. Приміщення дозволяє зручно зонувати площу під торговий зал, робочу зону персоналу, зону обслуговування клієнтів та, за потреби, допоміжні приміщення. Такий метраж підходить як для відкриття нового бізнесу, так і для розширення вже існуючої діяльності.
Приміщення має універсальне призначення та може бути адаптоване під різні формати комерційної діяльності. Воно чудово підійде для продуктового або алкогольного магазину, кафе, ломбарду, салону краси, зоомагазину, спеціалізованої торгової точки або іншого бізнесу, орієнтованого на мешканців району. Формат нежитлового фонду на першому поверсі є зручним для стабільної роботи без обмежень, характерних для тимчасових споруд.
Проспект Павла Тичини — це жива міська локація з щільною житловою забудовою та активним рухом людей. Комерційні приміщення у таких місцях користуються стабільним попитом, оскільки забезпечують бізнесу постійний контакт із потенційними клієнтами та мінімізують ризики простою.
Нежитлове приміщення на проспекті Павла Тичини, 10 стане вдалим рішенням для підприємців, які шукають комерційну площу у спальному районі Києва з хорошою прохідністю, зрозумілим оточенням та реальним потенціалом розвитку.
Оренда здійснюється без комісії, напряму від власника, на прозорих і зрозумілих умовах.
Телефонуйте, щоб орендувати об’єкт або уточнити всі деталі. Контактні номери наведені нижче.
